Rustico in vendita

Riese Pio X, Borgo Rinascimento - Artesini
€ 35.000
3 locali 3 locali
70 Mq 70 Mq

Rustico in vendita

Riese Pio X, Borgo Rinascimento - Artesini

Descrizione annuncio

///NOSTRA ESCLUSIVA DI VENDITA///

LORIA: Nel cuore del comune di Loria, proponiamo un affascinante rustico indipendente in vendita.

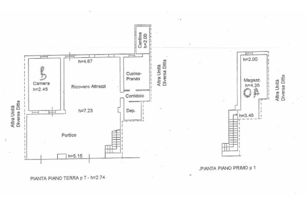
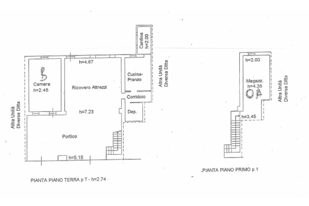
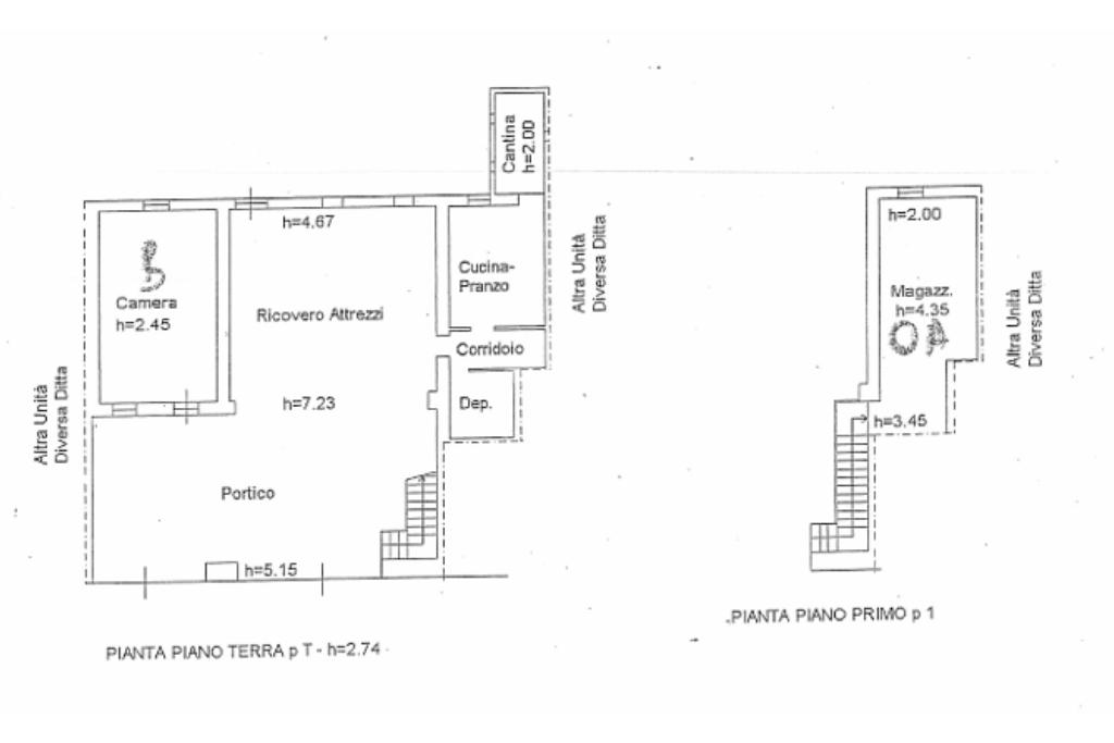
Questa proprietà offre una superficie di 70 mq, situata al piano terra di una struttura che conserva il fascino del passato.

L'immobile, di categoria popolare, rappresenta un'opportunità unica per chi desidera personalizzare la propria abitazione, grazie alla possibilità di ristrutturazione.

La struttura originale permette di mantenere elementi caratteristici dell'epoca, offrendo al contempo la libertà di adattare gli spazi alle proprie esigenze.

La posizione strategica nel comune di Loria garantisce un facile accesso ai servizi locali, pur mantenendo la tranquillità tipica delle abitazioni indipendenti.

Questa proprietà è ideale per chi cerca un progetto di ristrutturazione che unisca storia e modernità, in un contesto autentico e suggestivo.

Per ulteriori informazioni contattateci in Agenzia e seguiteci anche su Instagram, e cliccando mi piace sulla pagina Facebook Gruppo Tecnocasa Riese e Loria.

Scaricate gratuitamente l'app Tecnocasa sul vostro smartphone e sarete sempre aggiornati sulle nostre proposte di vendita.

Mostra tutto

Nelle vicinanze

Trasporto pubblico Trasporto pubblico
Trasporto pubblico
2,8 Km
Scuole Scuole
Scuola elementare Margherita Sarto Sanson
290 m
Scuole
330 m
Scuole Elementari e Materne
3,0 Km
Farmacia Farmacia
Farmacia San Pio X
40 m
Farmacia San Giovanni
2,9 Km
Farmacia San Vito
2,9 Km
Supermercati Supermercati
Martini Roberto
180 m
Issimo
290 m
Maxì Supermercati
650 m
Aliper
990 m
La Bottega Simply
2,8 Km
Negozi Negozi
Panificio Pasticceria Antelmi
220 m
Panificio Sfornati d'Arte
240 m
Negozi
280 m
alpinestars Factory Outlet
870 m
Panificio Antelmi
2,6 Km
Bar Bar
Bar
60 m
Fashion
220 m
Alla Pesa
470 m
Punta del Este
2,5 Km
Principe in bicicletta
2,8 Km
Ristoranti Ristoranti
Pizzeria da asporto Alla Torre
110 m
Pizzeria Pio X
130 m
Trattoria alle Due Spade
170 m
Gazzola
270 m
Re Beato Pizzeria da Asporto
380 m
Mostra tutto

Caratteristiche

Rif.:
61183470
Piano:
2 di 2 (Piano terra)
Camere da letto:
2
Arredamento:
Assente
Condizionamento:
Assente
Ascensore:
No
Mostra tutto
Prezzo Prezzo
€ 35.000
Rata mutuo Rata mutuo
€ 165 / mese
Spese annue Spese annue
€ 0
Proponi il tuo prezzoProponi il tuo prezzo
Immobile valutato con T·Valuta

Classe Energetica

G
G
G
G
G
G
G
G
G
Anno di costruzione:
1900
Riscaldamento:
Assente

Ti interessa visionare l'immobile?

Fissa un appuntamento  Fissa un appuntamento

Richiedi informazioni

Clicca su Leggi per aprire l'informativa
* Questi campi sono obbligatori

Calcola il tuo mutuo

Semplice e senza impegno
Anticipo

( % )
Mutuo

( % )

pochi semplici passi

inserisci i tuoi dati
Questionario completato
Grazie per aver richiesto un appuntamento senza impegno con un nostro Consulente del Credito e Assicurativo.

Hai inserito correttamente tutti i dati necessari e a breve riceverai una e-mail con un link da convalidare per inviare i tuoi dati.
Affiliato
Studio Aliseo Srl
Borgo Rinascimento, 2/A 31039 Riese Pio X (TV)

Il nostro staff


  • Katia Bau
    Affiliata

  • Edoardo Maria Cunzo
    Affiliato

  • Marta Ferronato
    Coordinatrice

  • Egle Marcon
    Collaboratrice

  • Aurora Pateqi
    Collaboratrice

  • Michele Pozzebon
    Collaboratore

  • Michal Rogalski
    Affiliato
Borgo Rinascimento, 2/A 31039 Riese Pio X (TV)
Zona: Riese Pio X-Loria
Mostra su mappa
Affiliato
Studio Aliseo Srl
Borgo Rinascimento, 2/A 31039 Riese Pio X (TV)

2026 Tecnocasa Franchising S.p.A. - P. IVA 08365160152 - Via Monte Bianco 60/A 20089 Rozzano (MI). Ogni agenzia ha un proprio titolare ed è autonoma. Privacy policy | Policy utilizzo | Cookie policy