Villa singola in vendita

Altivole, Borgo Rinascimento
€ 205.000
Prezzo aggiornato
7 locali 7 locali
300 Mq 300 Mq
3 bagni 3 bagni

Villa singola in vendita

Altivole, Borgo Rinascimento

Descrizione annuncio

///PROPONIAMO IN VENDITA///

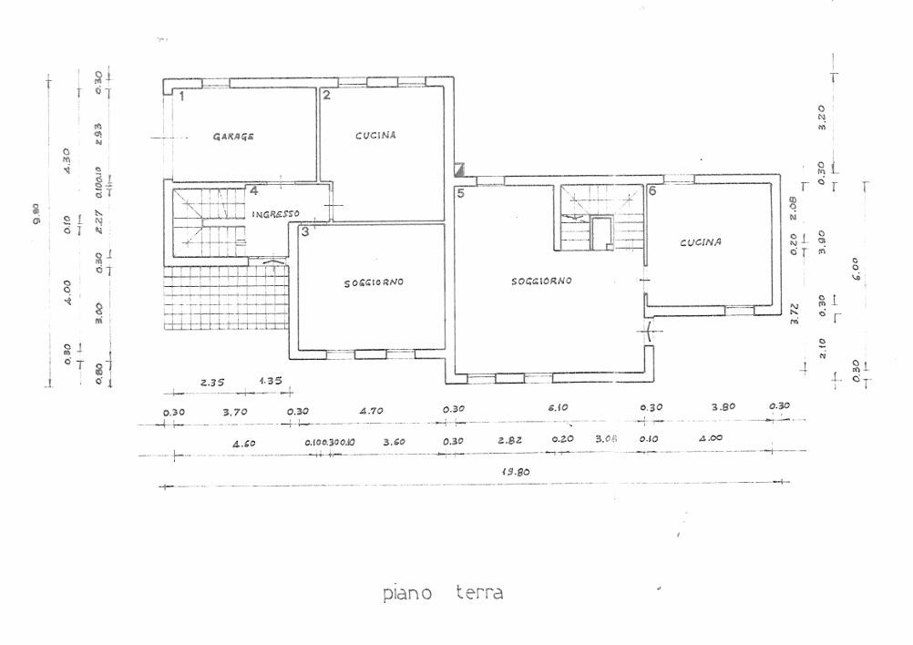
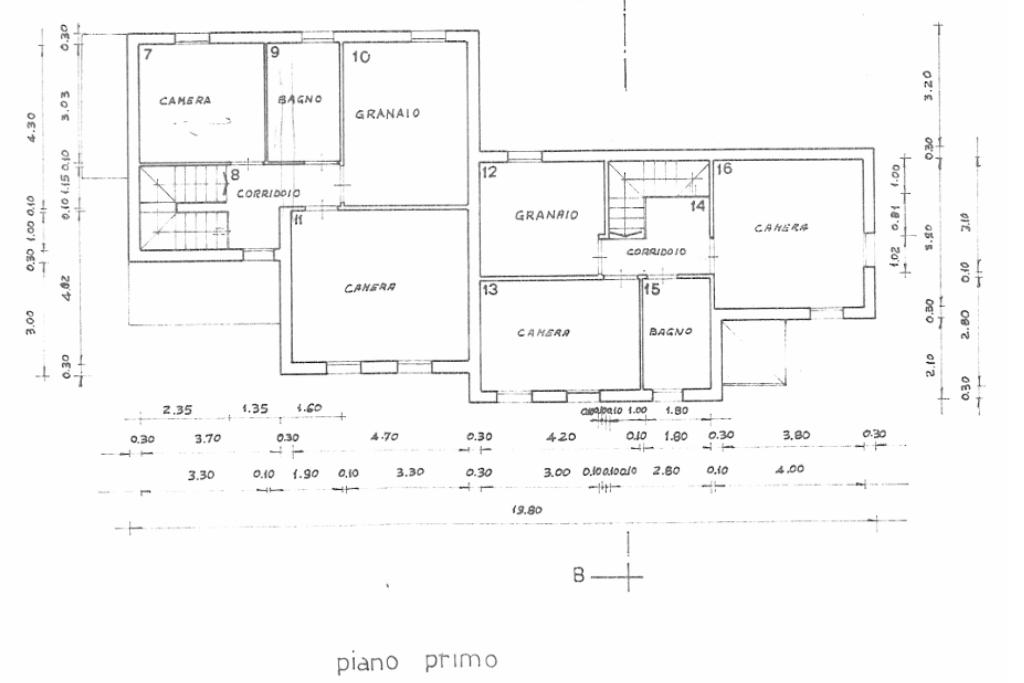
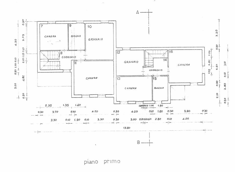
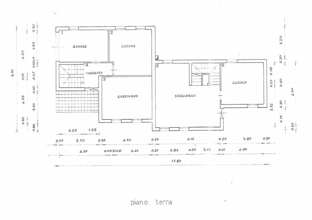
Nel cuore del comune di Altivole, si trova una villa singola al grezzo di 300 mq, divisibile in 2 porzioni pronta per essere trasformata nella casa dei tuoi sogni.

Costruita nel 2000, questa villa rappresenta un'opportunità unica nel suo genere.

La villa dispone di 7 locali, tra cui 6 camere da letto, ideali per famiglie numerose o per chi desidera avere stanze dedicate a ospiti o uffici.

Le due cucine abitabili e le due taverne offrono ulteriori possibilità di personalizzazione e utilizzo degli spazi.

Completano la proprietà due box auto e sei posti auto esterni, garantendo comodità e praticità per tutta la famiglia.

Con un giardino di 2000 mq, avrai tutto lo spazio necessario per goderti momenti di relax.

Situata in una tranquilla zona residenziale, questa proprietà offre ampi spazi e versatilità all'aperto o per organizzare eventi con amici e familiari.

Per ulteriori informazioni contattateci in Agenzia e seguiteci anche su Instagram, e cliccando mi piace sulla pagina Facebook Gruppo Tecnocasa Riese e Loria.

Scaricate gratuitamente l'app Tecnocasa sul vostro smartphone e sarete sempre aggiornati sulle nostre proposte di vendita.

Mostra tutto

Nelle vicinanze

Trasporto pubblico Trasporto pubblico
Trasporto pubblico
2,2 Km
Actm
Actm
2,7 Km
Scuole Scuole
Scuole
100 m
Scuola Materna S. Cuore
210 m
Scuola media Frà Giocondo di Altivole
730 m
Scuola Elementare
1,9 Km
Farmacia Farmacia
S.Antonio
220 m
Supermercati Supermercati
Spak supermercati
1,8 Km
Negozi Negozi
Quaggiotto
210 m
Gatto Abbigliamento
2,2 Km
Il Forno
2,7 Km
Bar Bar
Bar centrale
150 m
Bar
2,1 Km
Ristoranti Ristoranti
Brasserie Mc Bryan
140 m
Alla Colombera
370 m
Pizzeria da Volpe
1,6 Km
Da Perin
1,7 Km
Pizzeria Europa
1,9 Km
Mostra tutto

Caratteristiche

Rif.:
61193152
Piano:
3 di 3 (Piano su più livelli)
Box:
2
Posti auto:
6
Camere da letto:
4
Arredamento:
Assente
Mostra tutto
Prezzo Prezzo
€ 205.000
Rata mutuo Rata mutuo
€ 974 / mese
Spese annue Spese annue
€ 0
Proponi il tuo prezzoProponi il tuo prezzo

Classe Energetica

A4
A4
A4
A4
A4
A4
A4
A4
A4
EP invernale del fabbricato:
EP estiva del fabbricato:
Anno di costruzione:
2000
Riscaldamento:
Assente

Prezzo ridotto di €1 (7%%)

Ti interessa visionare l'immobile?

Fissa un appuntamento  Fissa un appuntamento

Richiedi informazioni

Clicca su Leggi per aprire l'informativa
* Questi campi sono obbligatori

Calcola il tuo mutuo

Semplice e senza impegno
Anticipo

( % )
Mutuo

( % )

pochi semplici passi

inserisci i tuoi dati
Questionario completato
Grazie per aver richiesto un appuntamento senza impegno con un nostro Consulente del Credito e Assicurativo.

Hai inserito correttamente tutti i dati necessari e a breve riceverai una e-mail con un link da convalidare per inviare i tuoi dati.
Affiliato
Studio Aliseo Srl
Borgo Rinascimento, 2/A 31039 Riese Pio X (TV)

Il nostro staff


  • Katia Bau
    Affiliata

  • Edoardo Maria Cunzo
    Affiliato

  • Marta Ferronato
    Coordinatrice

  • Michele Pozzebon
    Collaboratore

  • Michal Rogalski
    Affiliato
Borgo Rinascimento, 2/A 31039 Riese Pio X (TV)
Zona: Riese Pio X-Loria
Mostra su mappa
Affiliato
Studio Aliseo Srl
Borgo Rinascimento, 2/A 31039 Riese Pio X (TV)

2026 Tecnocasa Franchising S.p.A. - P. IVA 08365160152 - Via Monte Bianco 60/A 20089 Rozzano (MI). Ogni agenzia ha un proprio titolare ed è autonoma. Privacy policy | Policy utilizzo | Cookie policy